Affascinante villa con vista lago
€ 445.000
Varano Borghi, Varese
Dettagli
Contratto Vendita
Rif IMMO-123207121
Prezzo € 445.000
Provincia Varese
Comune Varano Borghi
Indirizzo Via Roma 8">
Vani 8
Camere 4
Bagni 2
Classe energetica
G (DL 90/2013)
EPgl,nren 350 kwh/m2 anno
Riscaldamento autonomo
Condizioni abitabile
Anno di costruzione 1965
Cucina abitabile
Consistenze
| Descrizione | Superficie | Sup. comm. |
|---|---|---|
| Principali | ||
| Immobile - piano terra | 120 Mq | 120 Mqc |
| Immobile - 1° piano | 125 Mq | 125 Mqc |
| Box/Garage - piano terra | 17 Mq | 8 Mqc |
| Totale | 253 Mqc | |
VARANO BORGHI - In una tranquilla zona collinare, proponiamo in vendita una splendida villa con meravigliosa vista lago, circondata da un giardino di circa 3.000 mq, in parte edificabile.
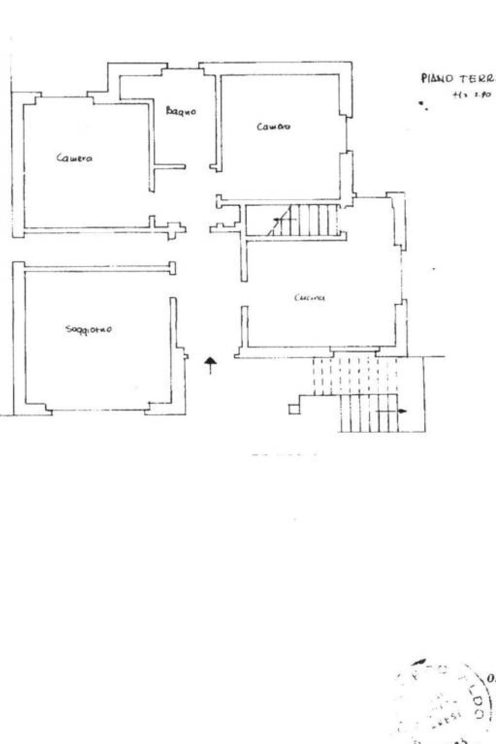
L'immobile si sviluppa su due livelli: al piano terra è composto da spazioso ingresso, luminoso soggiorno, cucina abitabile, disimpegno, due camere da letto e bagno con doccia.
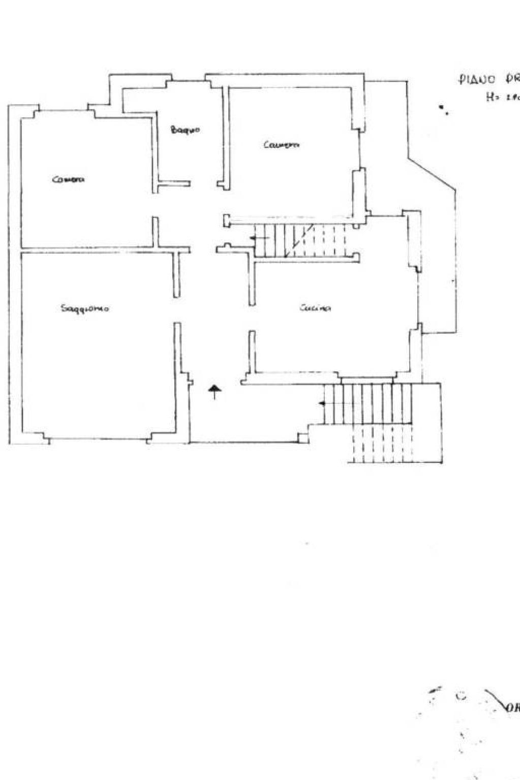
Al primo piano, recentemente ristrutturato con finiture di pregio, si compone di ampio e accogliente soggiorno con camino e vista panoramica sul lago, cucina abitabile con balcone, camera matrimoniale, seconda camera da letto con uscita sul balcone e bagno dotato sia di doccia che di vasca.
Completano la proprietà un ampio locale artigianale di 215 mq, con accesso diretto all'abitazione, diversi locali di sgombero e box auto.
La villa è collegata internamente da scala, ma dispone anche di scala esterna e di due ingressi carrai, che permettono di rendere le unità completamente indipendenti.
Contattaci al 3792837209 per concordare un appuntamento con uno dei nostri consulenti! Se sei interessato ad una CONSULENZA SENZA ALCUN IMPEGNO del tuo immobile siamo a vostra completa disposizione! Offriamo una consulenza finanziaria per offrire ai nostri clienti il miglior tasso disponibile. Per maggiore informazioni vista il nostro sito WWW.ACIMMOBILIAREVERGIATE.IT
Seguici sui nostri social per restare aggiornato su tutte le nostre novità !
L'immobile si sviluppa su due livelli: al piano terra è composto da spazioso ingresso, luminoso soggiorno, cucina abitabile, disimpegno, due camere da letto e bagno con doccia.
Al primo piano, recentemente ristrutturato con finiture di pregio, si compone di ampio e accogliente soggiorno con camino e vista panoramica sul lago, cucina abitabile con balcone, camera matrimoniale, seconda camera da letto con uscita sul balcone e bagno dotato sia di doccia che di vasca.
Completano la proprietà un ampio locale artigianale di 215 mq, con accesso diretto all'abitazione, diversi locali di sgombero e box auto.
La villa è collegata internamente da scala, ma dispone anche di scala esterna e di due ingressi carrai, che permettono di rendere le unità completamente indipendenti.
Contattaci al 3792837209 per concordare un appuntamento con uno dei nostri consulenti! Se sei interessato ad una CONSULENZA SENZA ALCUN IMPEGNO del tuo immobile siamo a vostra completa disposizione! Offriamo una consulenza finanziaria per offrire ai nostri clienti il miglior tasso disponibile. Per maggiore informazioni vista il nostro sito WWW.ACIMMOBILIAREVERGIATE.IT
Seguici sui nostri social per restare aggiornato su tutte le nostre novità !
Video
Richiedi maggiori informazioni
Mappa
Zoom della mappa
Apri con:
Apple Maps
Google Maps
Waze
Contattaci
A.C.IMMOBILIARE
Via Felice Cavallotti, 6 21029 VERGIATE (VA)
Via Felice Cavallotti, 6 21029 VERGIATE (VA)
P.IVA: 03693790127
+393792837209






